5,836 SF TURN KEY CANNABIS MICROBUSINESS For Sale

  • $1,500,000/($257/SF)
Featured For Sale
66321 Pierson Blvd
Featured For Sale

5,836 SF TURN KEY CANNABIS MICROBUSINESS For Sale

66321 Pierson Blvd
  • $1,500,000/($257/SF)

Overview

  • Cannabis Buildings
  • Property Type
  • 5836
  • SF
  • .6
  • Lot AC
  • 1967
  • Year Built

Description

Features

  • Your Opportunity To Own Both The Real Estate And A Fully Licensed, Vertically Integrated Cannabis Facility
  • Free Standing 5,836 SF Cannabis Building On .6 Acres
  • Allows Cannabis Dispensary, Delivery, Manufacturing Kitchen, Distribution, and Cultivation
  • Prime Location On High-Traffic Pierson Blvd With Easy Ingress/Egress
  • No Cannabis Manufacturing Tax in Desert Hot Springs

Property Documents

66321 Pierson Blvd (MicroBuddery)

Site Amenities

Updated on October 9, 2025 at 7:23 pm
  • Price: $1,500,000/($257/SF)
  • Land Squarefootage: 5836 SF
  • Land Acreage: .6 AC
  • Year Built: 1967
  • Property Type: Cannabis Buildings
  • Property Status: For Sale
  • Zoning: Top Parcel (045) Downtown Commercial; Bottom Parcel (044): MU-N (Mixed Use Neighborhood)
  • APN: 641-041-044, 045
  • Utilities: All utilities to site
  • Highest & Best Use: Cannabis Microbusiness
  • Opportunity Zone: Yes
  • Comments: .9 Acres Also Available Land APN: 641-041-002, 003, 040, 039, 038 and 037

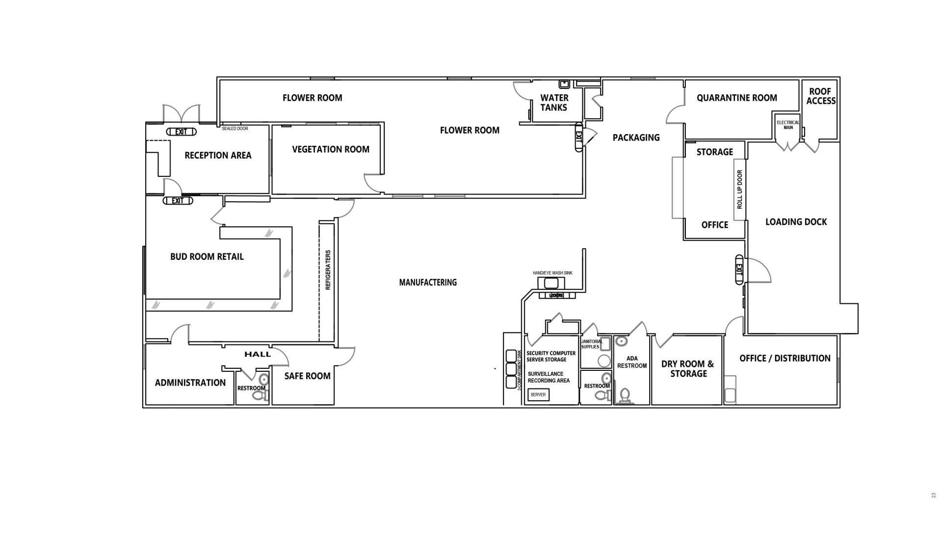
Floor Plans

image

Description:

  • Address 66321 Pierson Blvd
  • City Desert Hot Springs
  • State/county California
  • Zip/Postal Code 92240
  • Country United States

Similar Listings

The information contained herein is proprietary and strictly confidential. It is intended to be reviewed only by the party receiving it from Desert Pacific Properties and should not be made available to any other person or entity without the written consent of Broker. The Materials have been prepared to provide summary, unverified information to interested parties, and to establish only a preliminary level of interest in the subject property. Broker, as a Real Estate Licensee is not qualified to discuss or advise on legal, accounting, or other matters outside of those permitted by state law. Broker has not made any investigation, and makes no warranty or representation, with respect to the future projected financial performance of the property, the acreage, square footage or unit count of the property and improvements, the compliance or non-compliance with the City, County, State and/or Federal regulations, or the physical condition of the improvements thereon. The information contained in this brochure (also referred to as an Offering Memorandum) has been obtained from sources that we believe to be reliable, however, Broker has not verified, and will not verify, any of the information contained therein, nor has broker conducted and investigation regarding these matters and makes no warranty or representation whatsoever regarding the accuracy or completeness of the information provided. All interested parties must take appropriate measures to verify all of the information set forth herein. All references to Broker include its officers, partners, agents, sub-agents, and employees. Buyer and the Seller of subject property acknowledges that Desert Pacific Properties, may act as an agent for both the Buyer and the Seller on the subject property. Any prospective Buyer or Seller acknowledges the foregoing disclosures and agrees to the described agency relationships with other prospective Buyers and Sellers.

Compare listings

Compare
Rebecca Ramirez
  • Rebecca Ramirez